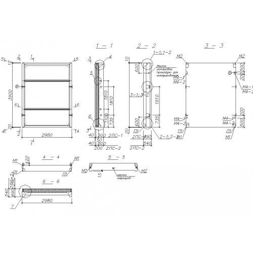
2ПС 2 Стеновые панели
Характеристики изделия:
| Параметр | Значение |
|---|---|
| длина | 2980 мм |
| ширина | 540 мм |
| высота | 3900 мм |
| масса | 3050 кг |
| нормативный документ | Серия 7075-М |
Цена:
Рассчитать стоимость2ПС 2 Трехслойные стеновые панели по Серии 7075-М.
| Параметр | Значение |
|---|---|
| длина | 2980 мм |
| ширина | 540 мм |
| высота | 3900 мм |
| масса | 3050 кг |
| нормативный документ | Серия 7075-М |
2ПС 2 Трехслойные стеновые панели по Серии 7075-М.
