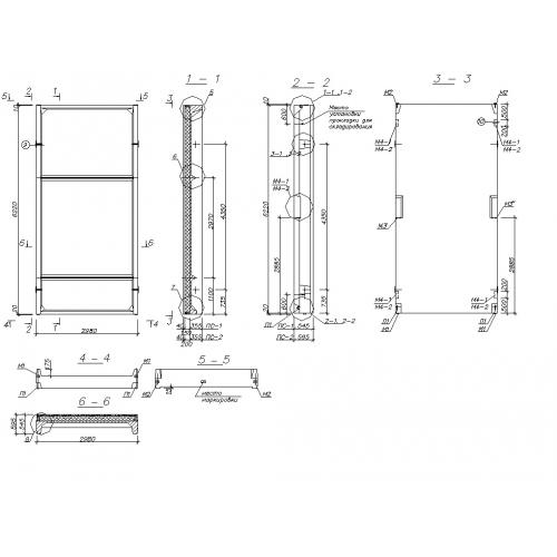
ПС стеновая панель рядовая

Чертеж изделия:
Характеристики изделия:
ПараметрЗначение
длина2980 мм
ширина545 мм
высота6220 мм
масса4760 кг
нормативный документСерия 7018-М

ПС   Панели стеновые рядовые по Серии 7018-М.