БТ 9

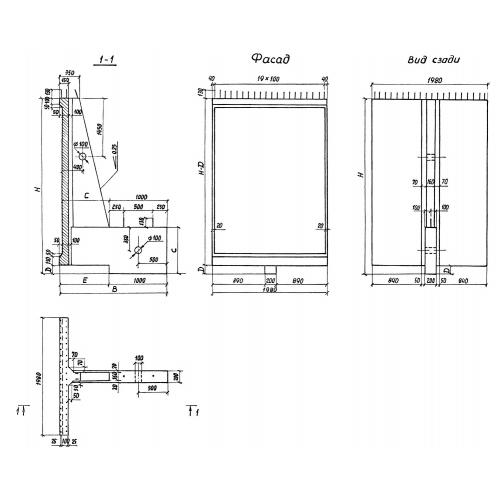
Чертеж изделия:
Характеристики изделия:
ПараметрЗначение
длина3050 мм
ширина1980 мм
высота8850 мм
вес10010 кг
серия3.503.1-67

БТ 9 Блоки контрфорсные таврового сечения по серии 3.503.1-67.