ПК 48.10

Чертеж изделия:
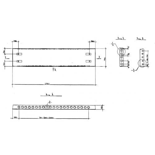
Характеристики изделия:
ПараметрЗначение
длина4780 мм
ширина990 мм
высота220 мм
вес1500 кг
серия1.141.1 КЛ-3

ПК 48.10 Плита перекрытия с круглыми пустотами по серии 1.141.1 КЛ-3.