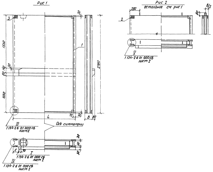
СБЛ 19.28.2-п-2

Чертеж изделия:
Характеристики изделия:
ПараметрЗначение
Длина1940 мм
Ширина200 мм
Высота2780 мм
Масса1700 кг
Нормативный документСерия 1.134-2

Блоки внутренних стен из легких бетонов толщиной 16 и 20 см  для жилых зданий высотой 1-4 этажа и общественных зданий высотой 1-3 этажа по Серии 1.134-2.

СБЛ 19.28.2-п-2  Стеновой блок лестничных клеток. (рис.1)