3БН 27.4.50

Чертеж изделия:
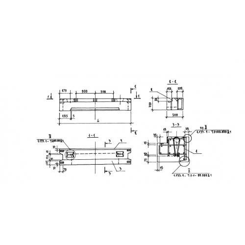
Характеристики изделия:
ПараметрЗначение
длина2680 мм
ширина500 мм
высота420 мм
вес690 кг
серия1.133.1-7

3БН 27.4.50 Блоки перемычечные по серии 1.133.1-7.