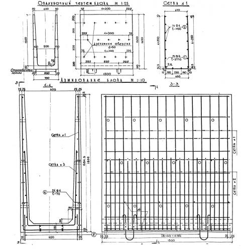
МПЛ 1.5 Лоток тип II

Чертеж изделия:
Характеристики изделия:
ПараметрЗначение
длина1500 мм
ширина700 мм
высота1600 мм
масса1100 кг
нормативный документАльбом № 984

Лотки  междупутные МПЛ 1.5 тип II, Альбом № 984.

Применяются лотки МПЛ 1.5 для пропуска воды вдоль железнодорожных путей. Лотки этого типа как правило укладываются в междупутьях с пониженных отметок при пилообразном профиле земляного полотна и верха балластного слоя станционных парков.

МАРКИРОВКА

Маркировка бетонных блоков МПЛ 1.5 состоит из буквенно-цифровых групп:

МПЛ бетонный блок междупутного лотка

1,5 глубина лотка в метрах